top of page
We are an Employee-Owned Co-operative
Menu
Close
Home
People
Portfolio
Practice
Contact
Resources
Testimonials
Blog
SEED Homes
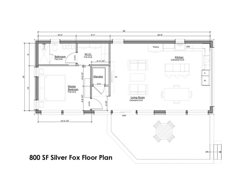
Silver Fox 880 sf
bottom of page